間取り図を公開していた+BASE物件について、続報!
「模型」と間取り図を用いて現在検討中の+BASE物件をご紹介いたします。

エントランスから敷地へ入り、大扉を開けて、バイクとともに部屋に入ってゆきます。

大扉の向こうは、バイクが停められる、入居者だけのガレージスペース。
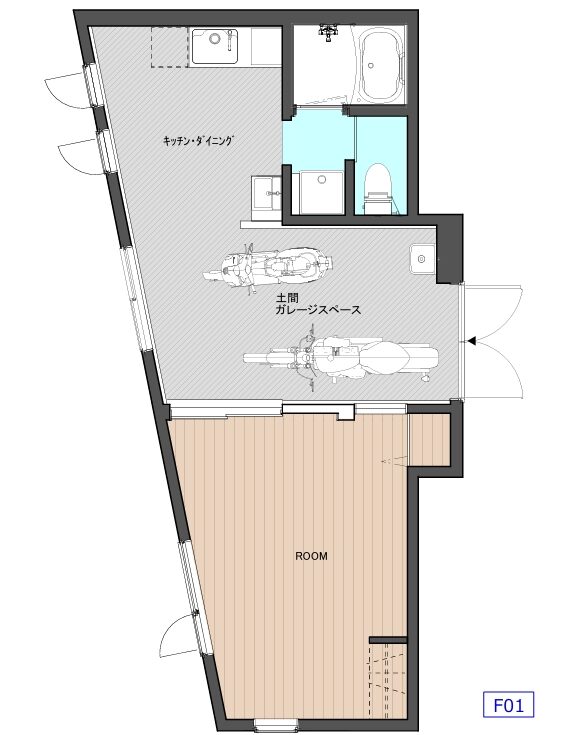
1階の部屋は大きな土間で居室を仕切っており、大きさ次第ですが、バイク2台を余裕で駐輪できるスペースをご用意。
2Fメゾネットタイプでも、1F部分はほぼすべて、バイク専用ガレージとして使用いただけます。1Fより駐輪できるスペースは小さいですが、ハーレーダビッドソンなどの大型アメリカンタイプでも駐輪可能。


▲F01タイプ(1F)
間取り | 1DK+バイク用ガレージ(バイク2台駐車可) キッチンダイニング+洋室1部屋の構成。 バス・トイレ別、洗面所あり |

【特徴】居室とダイニングを分けられる1DK、広めのガレージ付きバイク2台駐輪可能な大容量。複数台バイクをお持ちの方に最適です。
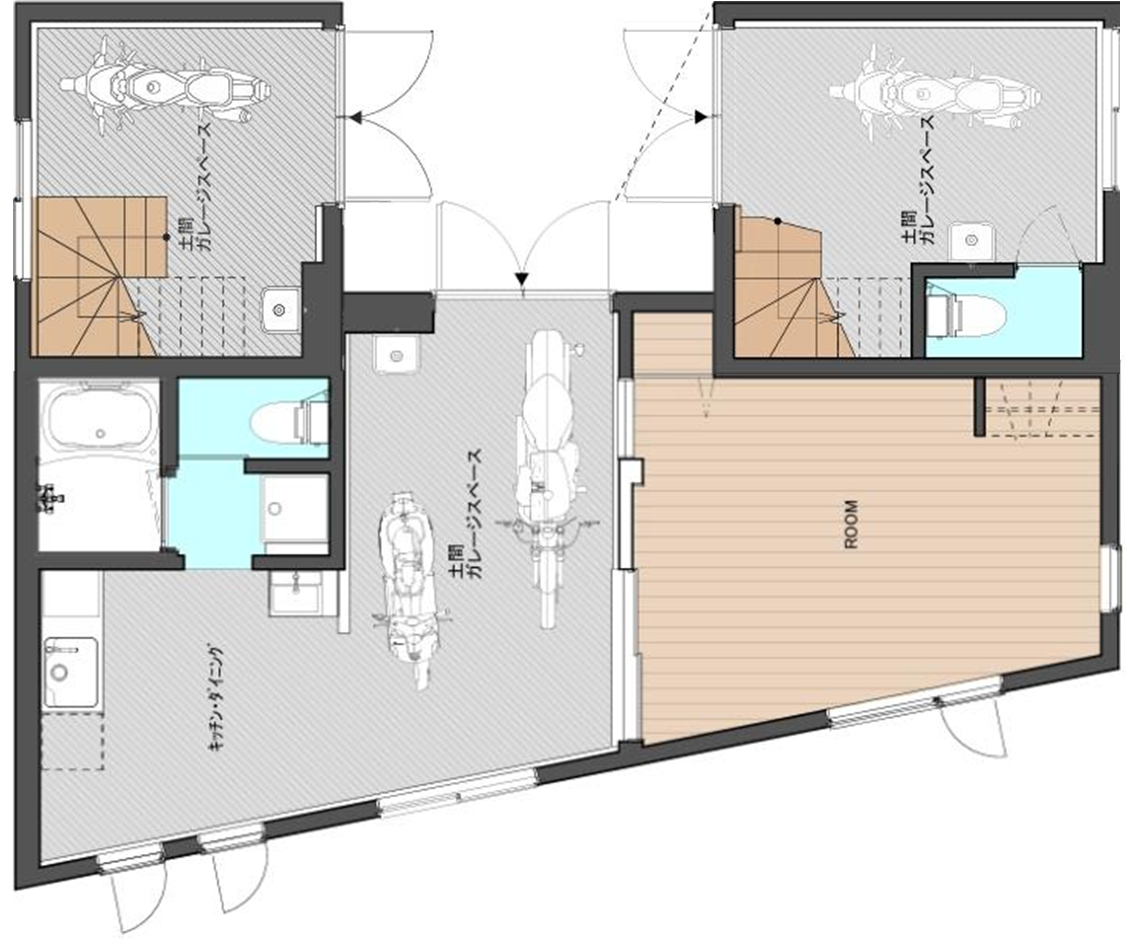
1F、2Fにまたがるメゾネットタイプの「M01」「M02」は1Fを大型オートバイ1台が余裕で置けるガレージスペースを中心にしたオートバイ専用といえる区画。
居住スペースをすべて2Fに置くことで、バイク用ガレージと居住性を両立した部屋となります。


▲M01タイプ(1F・2Fメゾネット)
間取り | 2K+ロフト+バイク用ガレージ (1階:バイク用ガレージ) (2階:洋室2部屋(ROOM1+ROOM2、キッチン、バス・トイレ別)) |

【特徴】1Fのガレージに直結!収納・趣味スペースに最適なロフト付きで荷物が多い方にも安心⁉
▲M02タイプ(1F・2Fメゾネット)
間取り | 間取り:1K+ロフト+バイクガレージ (1階:バイクガレージ+トイレ) (2階:洋室1部屋(ROOM1)、キッチン・浴室) |

【特徴】1Fのバイクガレージに直結、2Fがシンプルな1K。寝室・収納に活用可能なロフト付き。

だんだん、形となってきた+BASE物件第一弾。
最新情報を出してゆきますので、バイク用ガレージを備えた賃貸物件に興味のあるバイカーは、ぜひInstagram「バイクと暮らす@+BASEプロジェクト」のフォローをお願いします。
〇インスタグラム「バイクと暮らす@+BASEプロジェクト」